Люберцы — продажа однокомнатных квартир
                                            505 квартир                                    
            
                                        1-комнатная
                                        
                                    
                                                                                        Люберцы, Люберцы, Дружбы, 45
                                        
                                    Общая: 40.2 м2
                                                                                
                                                                                    
                                                Кухня: 9.5 м2
Жилая: 17.9 м2
                                                                            Жилая: 17.9 м2
Этаж: 15/17
                                        Тип дома: монолитно-кирпичный
                                    
                                        3 885 330 Р
97 тыс. Р/м2
                                    
                                    97 тыс. Р/м2
14 ноября 2017 г.
                                
                                        1-комнатная
                                        
                                    
                                                                                        Люберцы, Люберцы, Дружбы, 44
                                        
                                    Общая: 39.9 м2
                                                                                
                                                                                    
                                                Кухня: 11 м2
Жилая: 14.8 м2
                                                                            Жилая: 14.8 м2
Этаж: 14/17
                                        Тип дома: кирпичный
                                    
                                        3 770 550 Р
95 тыс. Р/м2
                                    
                                    95 тыс. Р/м2
14 ноября 2017 г.
                                
                                        1-комнатная
                                        
                                    
                                                                                        Люберцы, Люберцы, Дружбы, 44
                                        
                                    Общая: 37.9 м2
                                                                                
                                                                                    
                                                Кухня: 17.6 м2
Жилая: 11.7 м2
                                                                            Жилая: 11.7 м2
Этаж: 15/17
                                        Тип дома: кирпичный
                                    
                                        3 865 800 Р
102 тыс. Р/м2
                                    
                                    102 тыс. Р/м2
14 ноября 2017 г.
                                
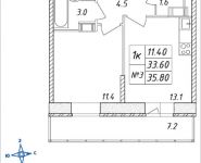
                                        1-комнатная
                                        
                                    
                                                                                        Люберцы, Люберцы, Дружбы, 44
                                        
                                    Общая: 35.8 м2
                                                                                
                                                                                    
                                                Кухня: 13.1 м2
Жилая: 11.4 м2
                                                                            Жилая: 11.4 м2
Этаж: 15/17
                                        Тип дома: кирпичный
                                    
                                        3 687 400 Р
103 тыс. Р/м2
                                    
                                    103 тыс. Р/м2
14 ноября 2017 г.
                                
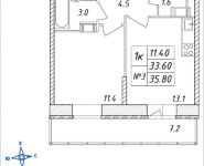
                                        1-комнатная
                                        
                                    
                                                                                        Люберцы, Люберцы, Дружбы, 44
                                        
                                    Общая: 35.8 м2
                                                                                
                                                                                    
                                                Кухня: 13.1 м2
Жилая: 11.4 м2
                                                                            Жилая: 11.4 м2
Этаж: 14/17
                                        Тип дома: кирпичный
                                    
                                        3 669 500 Р
103 тыс. Р/м2
                                    
                                    103 тыс. Р/м2
14 ноября 2017 г.
                                
                                        1-комнатная
                                        
                                    
                                                                                        Люберцы, Люберцы, Дружбы, 43
                                        
                                    Общая: 34.3 м2
                                                                                
                                                                                    
                                                Кухня: 12.3 м2
Жилая: 10.6 м2
                                                                            Жилая: 10.6 м2
Этаж: 9/17
                                        Тип дома: монолитно-кирпичный
                                    
                                        3 515 750 Р
103 тыс. Р/м2
                                    
                                    103 тыс. Р/м2
14 ноября 2017 г.
                                
                                        1-комнатная
                                        
                                    
                                                                                        Люберцы, Люберцы, Дружбы, 45
                                        
                                    Общая: 33.4 м2
                                                                                
                                                                                    
                                                Кухня: 13.7 м2
Жилая: 9.3 м2
                                                                            Жилая: 9.3 м2
Этаж: 17/17
                                        Тип дома: монолитно-кирпичный
                                    
                                        3 525 370 Р
106 тыс. Р/м2
                                    
                                    106 тыс. Р/м2
14 ноября 2017 г.
                                
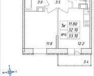
                                        1-комнатная
                                        
                                    
                                                                                        Люберцы, Люберцы, Дружбы, 44
                                        
                                    Общая: 33.1 м2
                                                                                
                                                                                    
                                                Кухня: 12.2 м2
Жилая: 11.8 м2
                                                                            Жилая: 11.8 м2
Этаж: 12/17
                                        Тип дома: кирпичный
                                    
                                        3 492 050 Р
106 тыс. Р/м2
                                    
                                    106 тыс. Р/м2
14 ноября 2017 г.
                                
                                        1-комнатная
                                        
                                    
                                                                                        Люберцы, Люберцы, Дружбы, 38
                                        
                                    Общая: 34.1 м2
                                                                                
                                                                                    
                                                Кухня: 11.8 м2
Жилая: 10.6 м2
                                                                            Жилая: 10.6 м2
Этаж: 11/13
                                        Тип дома: монолитно-кирпичный
                                    
                                        3 504 116 Р
103 тыс. Р/м2
                                    
                                    103 тыс. Р/м2
14 ноября 2017 г.
                                
                                        1-комнатная
                                        
                                    
                                                                                        Люберцы, Томилино, Новорязанское шоссе, 11, корп.11
                                        
                                    Общая: 26.33 м2
                                                                                
                                                                                    
                                                Кухня: 5 м2
Жилая: 12.41 м2
                                                                            Жилая: 12.41 м2
Этаж: 17/18
                                        Тип дома: монолитный
                                    
                                        2 090 812 Р
79 тыс. Р/м2
                                    
                                    79 тыс. Р/м2
02 ноября 2017 г.
                                
        Квартиры в Москве:
            По метро
    
            По районам Москвы
    
            По округам Москвы
    
            По улицам Москвы
    
Квартиры в Подмосковье: По городам Подмосковья По улицам Подмосковья
Квартиры в Новой Москве: По районам Новой Москвы По улицам Новой Москвы
Квартиры в Подмосковье: По городам Подмосковья По улицам Подмосковья
Квартиры в Новой Москве: По районам Новой Москвы По улицам Новой Москвы









