Люберцы — продажа однокомнатных квартир
                                            505 квартир                                    
            
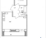
                                        1-комнатная
                                        
                                    
                                                                                        Люберцы, Томилино, Новорязанское шоссе, 15, корп.15
                                        
                                    Общая: 26.33 м2
                                                                                
                                                                                    
                                                Кухня: 5 м2
Жилая: 12.41 м2
                                                                            Жилая: 12.41 м2
Этаж: 12/18
                                        Тип дома: монолитный
                                    
                                        2 063 008 Р
78 тыс. Р/м2
                                    
                                    78 тыс. Р/м2
17 ноября 2017 г.
                                
                                        1-комнатная
                                        
                                    
                                                                                        Люберцы, Томилино, Новорязанское шоссе, 15, корп.15
                                        
                                    Общая: 26.08 м2
                                                                                
                                                                                    
                                                Кухня: 5 м2
Жилая: 11.94 м2
                                                                            Жилая: 11.94 м2
Этаж: 15/18
                                        Тип дома: монолитный
                                    
                                        2 057 190 Р
79 тыс. Р/м2
                                    
                                    79 тыс. Р/м2
17 ноября 2017 г.
                                
                                        1-комнатная
                                        
                                    
                                                                                        Люберцы, Люберцы, Дружбы, 39
                                        
                                    Общая: 45.5 м2
                                                                                
                                                                                    
                                                Кухня: 21.8 м2
Жилая: 10.7 м2
                                                                            Жилая: 10.7 м2
Этаж: 14/17
                                        Тип дома: монолитно-кирпичный
                                    
                                        4 345 250 Р
96 тыс. Р/м2
                                    
                                    96 тыс. Р/м2
14 ноября 2017 г.
                                
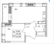
                                        1-комнатная
                                        
                                    
                                                                                        Люберцы, Люберцы, Дружбы, 43
                                        
                                    Общая: 42.2 м2
                                                                                
                                                                                    
                                                Кухня: 19.5 м2
Жилая: 11.6 м2
                                                                            Жилая: 11.6 м2
Этаж: 16/17
                                        Тип дома: монолитно-кирпичный
                                    
                                        4 283 300 Р
102 тыс. Р/м2
                                    
                                    102 тыс. Р/м2
14 ноября 2017 г.
                                
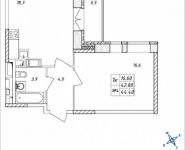
                                        1-комнатная
                                        
                                    
                                                                                        Люберцы, Люберцы, Дружбы, 39
                                        
                                    Общая: 44.4 м2
                                                                                
                                                                                    
                                                Кухня: 18.3 м2
Жилая: 16.6 м2
                                                                            Жилая: 16.6 м2
Этаж: 16/17
                                        Тип дома: монолитно-кирпичный
                                    
                                        4 240 200 Р
96 тыс. Р/м2
                                    
                                    96 тыс. Р/м2
14 ноября 2017 г.
                                
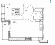
                                        1-комнатная
                                        
                                    
                                                                                        Люберцы, Люберцы, Дружбы, 38
                                        
                                    Общая: 43.1 м2
                                                                                
                                                                                    
                                                Кухня: 22.4 м2
Жилая: 10.5 м2
                                                                            Жилая: 10.5 м2
Этаж: 16/17
                                        Тип дома: монолитно-кирпичный
                                    
                                        4 131 566 Р
96 тыс. Р/м2
                                    
                                    96 тыс. Р/м2
14 ноября 2017 г.
                                
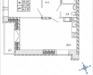
                                        1-комнатная
                                        
                                    
                                                                                        Люберцы, Люберцы, Дружбы, 43
                                        
                                    Общая: 43.1 м2
                                                                                
                                                                                    
                                                Кухня: 22.4 м2
Жилая: 10.5 м2
                                                                            Жилая: 10.5 м2
Этаж: 15/17
                                        Тип дома: монолитно-кирпичный
                                    
                                        4 245 350 Р
99 тыс. Р/м2
                                    
                                    99 тыс. Р/м2
14 ноября 2017 г.
                                
                                        1-комнатная
                                        
                                    
                                                                                        Люберцы, Люберцы, Дружбы, 38
                                        
                                    Общая: 42.2 м2
                                                                                
                                                                                    
                                                Кухня: 19.5 м2
Жилая: 11.6 м2
                                                                            Жилая: 11.6 м2
Этаж: 16/17
                                        Тип дома: монолитно-кирпичный
                                    
                                        4 171 892 Р
99 тыс. Р/м2
                                    
                                    99 тыс. Р/м2
14 ноября 2017 г.
                                
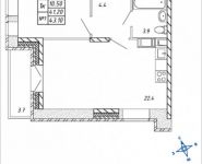
                                        1-комнатная
                                        
                                    
                                                                                        Люберцы, Люберцы, Дружбы, 38
                                        
                                    Общая: 43.1 м2
                                                                                
                                                                                    
                                                Кухня: 22.4 м2
Жилая: 10.5 м2
                                                                            Жилая: 10.5 м2
Этаж: 11/17
                                        Тип дома: монолитно-кирпичный
                                    
                                        4 062 606 Р
94 тыс. Р/м2
                                    
                                    94 тыс. Р/м2
14 ноября 2017 г.
                                
                                        1-комнатная
                                        
                                    
                                                                                        Люберцы, Люберцы, Дружбы, 38
                                        
                                    Общая: 42.2 м2
                                                                                
                                                                                    
                                                Кухня: 19.5 м2
Жилая: 11.6 м2
                                                                            Жилая: 11.6 м2
Этаж: 15/17
                                        Тип дома: монолитно-кирпичный
                                    
                                        4 133 912 Р
98 тыс. Р/м2
                                    
                                    98 тыс. Р/м2
14 ноября 2017 г.
                                
        Квартиры в Москве:
            По метро
    
            По районам Москвы
    
            По округам Москвы
    
            По улицам Москвы
    
Квартиры в Подмосковье: По городам Подмосковья По улицам Подмосковья
Квартиры в Новой Москве: По районам Новой Москвы По улицам Новой Москвы
Квартиры в Подмосковье: По городам Подмосковья По улицам Подмосковья
Квартиры в Новой Москве: По районам Новой Москвы По улицам Новой Москвы









