Звенигород — продажа двухкомнатных квартир
                                            10 квартир                                    
            
                                        2-комнатная
                                        
                                    
                                                                                        Звенигород, Звенигород г., Супонево мкр, 2
                                        
                                    Общая: 83 м2
                                                                                
                                                                                    
                                                Кухня: 16 м2
Жилая: 42 м2
                                                                            Жилая: 42 м2
Этаж: 8/15
                                        Тип дома: монолитно-кирпичный
                                    
                                        4 300 000 Р
52 тыс. Р/м2
                                    
                                    52 тыс. Р/м2
07 апреля 2017 г.
                                
                                        2-комнатная
                                        
                                    
                                                                                        Звенигород, Балашиха г, 
                                        
                                    Общая: 59.2 м2
                                                                                
                                                                                    
                                                Кухня: 22.3 м2
Жилая: 23.6 м2
                                                                            Жилая: 23.6 м2
Этаж: 3/11
                                        Тип дома: панельный
                                    
                                        5 754 240 Р
97 тыс. Р/м2
                                    
                                    97 тыс. Р/м2
11 июля 2017 г.
                                
                                        2-комнатная
                                        
                                    
                                                                                        Звенигород, Люберцы г, 
                                        
                                    Общая: 52.2 м2
                                                                                
                                                                                    
                                                Кухня: 11.6 м2
Жилая: 26.9 м2
                                                                            Жилая: 26.9 м2
Этаж: 17/22
                                        Тип дома: панельный
                                    
                                        6 415 380 Р
123 тыс. Р/м2
                                    
                                    123 тыс. Р/м2
28 июня 2017 г.
                                
                                        2-комнатная
                                        
                                    
                                                                                        Звенигород, Люберцы г, 
                                        
                                    Общая: 39.3 м2
                                                                                
                                                                                    
                                                Кухня: 5.1 м2
Жилая: 24.1 м2
                                                                            Жилая: 24.1 м2
Этаж: 13/22
                                        Тип дома: панельный
                                    
                                        5 207 250 Р
133 тыс. Р/м2
                                    
                                    133 тыс. Р/м2
28 июня 2017 г.
                                
                                        2-комнатная
                                        
                                    
                                                                                        Звенигород, Москва, Институтская 2-я ул, 6к4
                                        
                                    Общая: 71.8 м2
                                                                                
                                                                                    
                                                Кухня: 29 м2
Жилая: 27.3 м2
                                                                            Жилая: 27.3 м2
Этаж: 7/13
                                        Тип дома: монолит
                                    
                                        11 839 820 Р
165 тыс. Р/м2
                                    
                                    165 тыс. Р/м2
28 июня 2017 г.
                                
                                        2-комнатная
                                        
                                    
                                                                                        Звенигород, Москва, Поляны ул, 5Ак5
                                        
                                    Общая: 64.3 м2
                                                                                
                                                                                    
                                                Кухня: 20.8 м2
Жилая: 27.5 м2
                                                                            Жилая: 27.5 м2
Этаж: 11/33
                                        Тип дома: монолит
                                    
                                        10 140 110 Р
158 тыс. Р/м2
                                    
                                    158 тыс. Р/м2
28 июня 2017 г.
                                
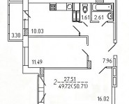
                                        2-комнатная
                                        
                                    
                                                                                            Строгино
Звенигород, Почтовая улица, 36
                                    Звенигород, Почтовая улица, 36
Общая: 50.71 м2
                                                                                
                                                                                    
                                                Кухня: 10 м2
Жилая: 27.5 м2
                                                                            Жилая: 27.5 м2
Этаж: 2/6
                                                                            
                                        3 397 570 Р
67 тыс. Р/м2
                                    
                                    67 тыс. Р/м2
16 августа 2018 г.
                                
                                        2-комнатная
                                        
                                    
                                                                                        ЮАО, Звенигород, улица Кирова, 78к1
                                        
                                    Общая: 51.5 м2
                                                                                
                                                                            Этаж: 2/4
                                                                            
                                        2 250 000 Р
44 тыс. Р/м2
                                    
                                    44 тыс. Р/м2
26 апреля 2018 г.
                                
                                        2-комнатная
                                        
                                    
                                                                                        ЮАО, Звенигород, улица Кирова, 78к1
                                        
                                    Общая: 51.2 м2
                                                                                
                                                                                    
                                                Кухня: 13.7 м2
Жилая: 19.1 м2
                                                                            Жилая: 19.1 м2
Этаж: 3/4
                                                                            
                                        2 250 000 Р
44 тыс. Р/м2
                                    
                                    44 тыс. Р/м2
26 апреля 2018 г.
                                
                                        2-комнатная
                                        
                                    
                                                                                        Звенигород, Люберцы г, 
                                        
                                    Общая: 55.6 м2
                                                                                
                                                                                    
                                                Кухня: 20.8 м2
Жилая: 21 м2
                                                                            Жилая: 21 м2
Этаж: 21/25
                                        Тип дома: панельный
                                    
                                        7 494 880 Р
135 тыс. Р/м2
                                    
                                    135 тыс. Р/м2
05 апреля 2017 г.
                                
        Квартиры в Москве:
            По метро
    
            По районам Москвы
    
            По округам Москвы
    
            По улицам Москвы
    
Квартиры в Подмосковье: По городам Подмосковья По улицам Подмосковья
Квартиры в Новой Москве: По районам Новой Москвы По улицам Новой Москвы
Квартиры в Подмосковье: По городам Подмосковья По улицам Подмосковья
Квартиры в Новой Москве: По районам Новой Москвы По улицам Новой Москвы









