Люберцы — продажа однокомнатных квартир
                                            505 квартир                                    
            
                                        1-комнатная
                                        
                                    
                                                                                        Люберцы, Люберцы, Дружбы, 44
                                        
                                    Общая: 37.7 м2
                                                                                
                                                                                    
                                                Кухня: 10.6 м2
Жилая: 18.1 м2
                                                                            Жилая: 18.1 м2
Этаж: 15/17
                                        Тип дома: кирпичный
                                    
                                        3 770 000 Р
100 тыс. Р/м2
                                    
                                    100 тыс. Р/м2
18 октября 2017 г.
                                
                                        1-комнатная
                                        
                                    
                                                                                        Люберцы, Люберцы, Дружбы, 44
                                        
                                    Общая: 35.8 м2
                                                                                
                                                                                    
                                                Кухня: 13.1 м2
Жилая: 11.4 м2
                                                                            Жилая: 11.4 м2
Этаж: 16/17
                                        Тип дома: кирпичный
                                    
                                        3 741 100 Р
105 тыс. Р/м2
                                    
                                    105 тыс. Р/м2
18 октября 2017 г.
                                
                                        1-комнатная
                                        
                                    
                                                                                        Люберцы, Люберцы, Дружбы, 44
                                        
                                    Общая: 37.1 м2
                                                                                
                                                                                    
                                                Кухня: 17.6 м2
Жилая: 10.3 м2
                                                                            Жилая: 10.3 м2
Этаж: 15/17
                                        Тип дома: кирпичный
                                    
                                        3 784 200 Р
102 тыс. Р/м2
                                    
                                    102 тыс. Р/м2
18 октября 2017 г.
                                
                                        1-комнатная
                                        
                                    
                                                                                        Люберцы, Люберцы, Дружбы, 44
                                        
                                    Общая: 37.1 м2
                                                                                
                                                                                    
                                                Кухня: 17.6 м2
Жилая: 10.3 м2
                                                                            Жилая: 10.3 м2
Этаж: 12/17
                                        Тип дома: кирпичный
                                    
                                        3 765 650 Р
102 тыс. Р/м2
                                    
                                    102 тыс. Р/м2
18 октября 2017 г.
                                
                                        1-комнатная
                                        
                                    
                                                                                        Люберцы, Томилино, Новорязанское шоссе, 11, корп.11
                                        
                                    Общая: 24.46 м2
                                                                                
                                                                                    
                                                Кухня: 5 м2
Жилая: 11.02 м2
                                                                            Жилая: 11.02 м2
Этаж: 16/18
                                        Тип дома: монолитный
                                    
                                        1 975 903 Р
81 тыс. Р/м2
                                    
                                    81 тыс. Р/м2
14 октября 2017 г.
                                
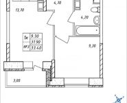
                                        1-комнатная
                                        
                                    
                                                                                        Люберцы, Люберцы, Дружбы, 47
                                        
                                    Общая: 33.4 м2
                                                                                
                                                                                    
                                                Кухня: 13.7 м2
Жилая: 9.3 м2
                                                                            Жилая: 9.3 м2
Этаж: 17/17
                                        Тип дома: монолитно-кирпичный
                                    
                                        3 458 570 Р
104 тыс. Р/м2
                                    
                                    104 тыс. Р/м2
06 сентября 2017 г.
                                
                                        1-комнатная
                                        
                                    
                                                                                        Люберцы, Люберцы, Дружбы, 47
                                        
                                    Общая: 33.4 м2
                                                                                
                                                                                    
                                                Кухня: 13.7 м2
Жилая: 9.3 м2
                                                                            Жилая: 9.3 м2
Этаж: 17/17
                                        Тип дома: монолитно-кирпичный
                                    
                                        3 458 570 Р
104 тыс. Р/м2
                                    
                                    104 тыс. Р/м2
06 сентября 2017 г.
                                
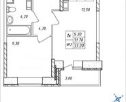
                                        1-комнатная
                                        
                                    
                                                                                        Люберцы, Люберцы, Дружбы, 47
                                        
                                    Общая: 33.2 м2
                                                                                
                                                                                    
                                                Кухня: 13.7 м2
Жилая: 9.3 м2
                                                                            Жилая: 9.3 м2
Этаж: 17/17
                                        Тип дома: монолитно-кирпичный
                                    
                                        3 437 860 Р
104 тыс. Р/м2
                                    
                                    104 тыс. Р/м2
06 сентября 2017 г.
                                
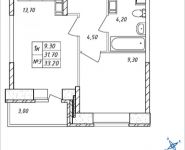
                                        1-комнатная
                                        
                                    
                                                                                        Люберцы, Люберцы, Дружбы, 47
                                        
                                    Общая: 33.2 м2
                                                                                
                                                                                    
                                                Кухня: 13.7 м2
Жилая: 9.3 м2
                                                                            Жилая: 9.3 м2
Этаж: 17/17
                                        Тип дома: монолитно-кирпичный
                                    
                                        3 437 860 Р
104 тыс. Р/м2
                                    
                                    104 тыс. Р/м2
06 сентября 2017 г.
                                
                                        1-комнатная
                                        
                                    
                                                                                        Люберцы, Люберцы, Дружбы, 43
                                        
                                    Общая: 43.1 м2
                                                                                
                                                                                    
                                                Кухня: 22.4 м2
Жилая: 10.5 м2
                                                                            Жилая: 10.5 м2
Этаж: 16/17
                                        Тип дома: монолитно-кирпичный
                                    
                                        4 310 000 Р
100 тыс. Р/м2
                                    
                                    100 тыс. Р/м2
06 сентября 2017 г.
                                
        Квартиры в Москве:
            По метро
    
            По районам Москвы
    
            По округам Москвы
    
            По улицам Москвы
    
Квартиры в Подмосковье: По городам Подмосковья По улицам Подмосковья
Квартиры в Новой Москве: По районам Новой Москвы По улицам Новой Москвы
Квартиры в Подмосковье: По городам Подмосковья По улицам Подмосковья
Квартиры в Новой Москве: По районам Новой Москвы По улицам Новой Москвы









